• 91香蕉视频在线看,91香蕉在线免费观看,香蕉久久网,香蕉视频黄色网站

    歡迎來到河南省鞏義市91香蕉视频在线看管道廠官網!
    91香蕉在线免费观看節,91香蕉在线免费观看器,91香蕉在线免费观看接頭廠家,鞏義91香蕉视频在线看管道廠
    91香蕉在线免费观看節 1 2 3
    【91香蕉在线免费观看器係列】
    91香蕉在线免费观看器
    SSQ型鑄鐵91香蕉在线免费观看器
    球墨鑄鐵91香蕉在线免费观看器
    CS型熱力管道91香蕉在线免费观看器
    SF鋼製91香蕉在线免费观看器
    RS型柔性套管式91香蕉在线免费观看器
    SSQP兩端法蘭限位壓盤式伸...
    SQX-A型套管式91香蕉在线免费观看器
    SQX-B型套管式91香蕉在线免费观看器
    SQX-C型套管式91香蕉在线免费观看器
    【傳力接頭係列】
    傳力接頭
    VSSJAFG型單法蘭鬆套傳力接...
    VSSJAF型雙法蘭鬆套傳力接...
    VSSJAFC可拆式雙法蘭鬆套傳...
    CF型單法蘭鬆套傳力接頭
    C2F型雙法蘭鬆套傳力接頭
    CC2F型可拆式雙法蘭鬆套傳...
    北京傳力接頭
    上海傳力接頭
    天津傳力接頭
    【防水套管係列】
    防水套管
    不鏽鋼防水套管
    A型剛性防水套管
    B型剛性防水套管
    C型剛性防水套管
    02S404剛性防水套管
    02S404柔性防水套管
    07FS02剛性密閉套管
    07FS02柔性密閉套管
    人防地下室專用密閉套管
    【補償器係列】
    補償器
    TWB/ZTWB型注油式直流介質...
    非金屬補償器矽膠蒙皮
    JR型通用金屬軟管
    不鏽鋼波紋管
    QB型球型補償器
    直埋式波紋補償器
    軸向內壓式波紋管膨脹節
    軸向外壓式波紋管膨脹節
    橫向小拉杆波紋管膨脹節
    【橡膠接頭係列】
    橡膠接頭
    JGD單球體可曲撓橡膠接頭
    JGD型雙球體可曲撓橡膠接頭...
    KXT單球體可曲撓橡膠接頭
    KXT雙球體可曲撓橡膠接頭
    GJQ(X)-SF雙球體可曲撓橡膠...
    GJQ(X)-DF-II單球體可曲撓...
    防拉脫可曲撓橡膠接頭
    JGD-B可曲撓雙球體絲連接橡...
    風機盤管接頭
    【冷卷法蘭係列】
    冷卷法蘭
    內蒙古彎嘴鴨嘴閥供應廠家...
    寧夏卡箍式鴨嘴閥廠家
    山東卡箍式橡膠鴨嘴止回閥...
    安徽單向橡膠鴨嘴閥工作原...
    湖南單向橡膠鴨嘴閥工作原...
    沈陽法蘭式鴨嘴閥生產廠家...
    【91香蕉在线免费观看接頭係列】
    雙法蘭限位91香蕉在线免费观看接頭
    VSSJA-1型單法蘭限位91香蕉在线免费观看接...
    B2F型雙法蘭鬆套限位91香蕉在线免费观看接...
    BF型單法蘭鬆套限位91香蕉在线免费观看接...
    AY型壓蓋式鬆套91香蕉在线免费观看接頭
    SSJB-3(BY)壓蓋式鬆套限位...
    SSJB-2(BY)壓蓋式鬆套限位...
    焊接式91香蕉在线免费观看接頭
    SSJB(AY)型壓蓋式鬆套91香蕉在线免费观看...
    GFJH型雙法蘭鋼複接頭
    91香蕉在线免费观看接頭係列

    雙法蘭限位91香蕉在线免费观看接頭

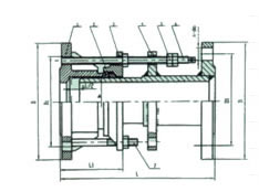
    雙法蘭限位91香蕉在线免费观看接頭型號VSSJA-2或B2F型,管道兩邊法蘭的連接方式,安裝在管道上可以和閥門連接,既補償了管道的91香蕉在线免费观看量又對閥門的維修提供了方便。 VSSJA-2型雙法蘭限位91香蕉在线免费观看接頭是由鬆套91香蕉在线免费观看接頭和一個法蘭限位短管組合而成。雙法蘭限位91香蕉在线免费观看接頭能防止管道因超量位移導致補償接頭的泄漏和損壞,主要用於在允許位移範圍內吸收軸向位移和承受軸向壓力推力的管道鬆套連接。

    全國24小時銷售熱線:0371-64031268

    雙法蘭限位91香蕉在线免费观看接頭應用範圍
    VSSJA-2型雙法蘭限位91香蕉在线免费观看接頭適用於輸送海水、淡水、冷熱水、飲用水、生活汙水、原油、燃油、潤滑油、成品油、空氣、煤氣、溫度不高於250度的蒸汽和顆粒粉狀等介質。
    雙法蘭限位91香蕉在线免费观看接頭功能介紹
    雙法蘭限位91香蕉在线免费观看接頭型號VSSJA-2或B2F型,管道兩邊法蘭的連接方式,安裝在管道上可以和閥門連接,既補償了管道的91香蕉在线免费观看量又對閥門的維修提供了方便。 VSSJA-2型雙法蘭限位91香蕉在线免费观看接頭是由鬆套91香蕉在线免费观看接頭和一個法蘭限位短管組合而成。雙法蘭限位91香蕉在线免费观看接頭能防止管道因超量位移導致補償接頭的泄漏和損壞,主要用於在允許位移範圍內吸收軸向位移和承受軸向壓力推力的管道鬆套連接。

    雙法蘭限位91香蕉在线免费观看接頭安裝說明
    VSSJA-2型雙法蘭限位91香蕉在线免费观看接頭適用於兩邊均與法蘭連接,安裝時調整產品兩端與法蘭的連接長度,對角依次均勻擰緊壓蓋螺栓,再調整好限位螺母,這樣就能讓管道在91香蕉在线免费观看量範圍內可以自由91香蕉在线免费观看,鎖定91香蕉在线免费观看量,確保管道的安全運行


    VSSJA-2型雙法蘭限位91香蕉在线免费观看接頭材料表

    名稱
    數量
    材料
    1
    本體
    1
    QT400-15、Q235A、ZG230-450、20
    2
    密封圈
    1
    NBR
    3
    壓蓋
    1
    QT400-15、Q235A、ZG230-450、20
    4
    限位短管法蘭
    1
    Q235A、20、16Mn
    5
    螺母
    4n
    Q235A、20、1Cr18Ni9Ti
    6
    長螺柱
    n
    Q235A、35、1Cr18Ni9Ti
    7
    螺柱
    n
    Q235A、35、1Cr18Ni9Ti

    VSSJA-2型雙法蘭限位91香蕉在线免费观看接頭安裝數據表

    公稱通徑
    管子外徑
    外形尺寸
    91香蕉在线免费观看量
    法蘭連接尺寸
    Dw
    L
    L1
    0.6MPa
    1.0MPa
    D
    D1
    n-d。
    D
    D1
    n-d。
    65
    76
    340
    105
    50
    160
    130
    4-¢14
    185
    145
    4-¢18
    80
    89
    190
    150
    4-¢18
    200
    160
    8-¢18
    100
    108
    210
    170
    220
    180
    114
    125
    133
    240
    200
    8-¢18
    250
    210
    140
    150
    159
    265
    225
    285
    240
    8-¢22
    168
    200
    219
    320
    280
    340
    295
    250
    273
    370
    335
    12-¢18
    395
    350
    12-¢22
    300
    325
    350
    130
    65
    440
    395
    12-¢22
    445
    400
    350
    377
    490
    445
    505
    460
    16-¢22
    400
    426
    540
    495
    16-¢22
    565
    515
    16-¢26
    450
    480
    595
    550
    615
    565
    20-¢26
    500
    530
    645
    600
    20-¢22
    670
    620
    600
    630
    755
    705
    20-¢26
    780
    725
    20-¢30
    700
    720
    860
    810
    24-¢26
    895
    840
    24-¢30
    800
    820
    590
    220
    130
    975
    920
    24-¢30
    1015
    950
    24-¢33
    900
    920
    1075
    1020
    1115
    1015
    28-¢33
    1000
    1020
    1175
    1120
    28-¢30
    1230
    1160
    28-¢36
    1200
    1220
    1405
    1340
    32-¢33
    1455
    1380
    32-¢40
    1400
    1420
    1630
    1560
    36-¢36
    1675
    1590
    36-¢42
    1500
    1520
    1730
    1660
    -
    -
    -
    1600
    1620
    1830
    1760
    40-¢36
    1915
    1820
    40-¢48
    1800
    1820
    2045
    1970
    44-¢40
    2115
    2020
    44-¢48
    2000
    2020
    2265
    2180
    48-¢42
    2325
    2230
    48-¢48
    2200
    2220
    2475
    2390
    52-¢42
    2550
    2440
    52-¢56
    2400
    2420
    2685
    2600
    56-¢42
    2760
    2650
    56-¢56


    企業名稱:鞏義市91香蕉视频在线看管道廠 地 址:河南省鞏義市西村工業區 聯係人:龐經理 電話:0371-64031268
    手機:15617617287 / 15038001853 傳真:0371-64031728 E_mail:gyltgd@126.com 豫ICP備12019710號-5
    專業91香蕉在线免费观看節,91香蕉在线免费观看器,91香蕉在线免费观看接頭,管道91香蕉在线免费观看器,限位91香蕉在线免费观看器生產廠家 版權所有 :鞏義市91香蕉视频在线看管道廠
    網站地圖