• 91香蕉视频在线看,91香蕉在线免费观看,香蕉久久网,香蕉视频黄色网站

    歡迎來到河南省鞏義市91香蕉视频在线看管道廠官網!
    91香蕉在线免费观看節,91香蕉在线免费观看器,91香蕉在线免费观看接頭廠家,鞏義91香蕉视频在线看管道廠
    91香蕉在线免费观看節 1 2 3
    【91香蕉在线免费观看器係列】
    91香蕉在线免费观看器
    SSQ型鑄鐵91香蕉在线免费观看器
    球墨鑄鐵91香蕉在线免费观看器
    CS型熱力管道91香蕉在线免费观看器
    SF鋼製91香蕉在线免费观看器
    RS型柔性套管式91香蕉在线免费观看器
    SSQP兩端法蘭限位壓盤式伸...
    SQX-A型套管式91香蕉在线免费观看器
    SQX-B型套管式91香蕉在线免费观看器
    SQX-C型套管式91香蕉在线免费观看器
    【傳力接頭係列】
    傳力接頭
    VSSJAFG型單法蘭鬆套傳力接...
    VSSJAF型雙法蘭鬆套傳力接...
    VSSJAFC可拆式雙法蘭鬆套傳...
    CF型單法蘭鬆套傳力接頭
    C2F型雙法蘭鬆套傳力接頭
    CC2F型可拆式雙法蘭鬆套傳...
    北京傳力接頭
    上海傳力接頭
    天津傳力接頭
    【防水套管係列】
    防水套管
    不鏽鋼防水套管
    A型剛性防水套管
    B型剛性防水套管
    C型剛性防水套管
    02S404剛性防水套管
    02S404柔性防水套管
    07FS02剛性密閉套管
    07FS02柔性密閉套管
    人防地下室專用密閉套管
    【補償器係列】
    補償器
    TWB/ZTWB型注油式直流介質...
    非金屬補償器矽膠蒙皮
    JR型通用金屬軟管
    不鏽鋼波紋管
    QB型球型補償器
    直埋式波紋補償器
    軸向內壓式波紋管膨脹節
    軸向外壓式波紋管膨脹節
    橫向小拉杆波紋管膨脹節
    【橡膠接頭係列】
    橡膠接頭
    JGD單球體可曲撓橡膠接頭
    JGD型雙球體可曲撓橡膠接頭...
    KXT單球體可曲撓橡膠接頭
    KXT雙球體可曲撓橡膠接頭
    GJQ(X)-SF雙球體可曲撓橡膠...
    GJQ(X)-DF-II單球體可曲撓...
    防拉脫可曲撓橡膠接頭
    JGD-B可曲撓雙球體絲連接橡...
    風機盤管接頭
    【冷卷法蘭係列】
    冷卷法蘭
    內蒙古彎嘴鴨嘴閥供應廠家...
    寧夏卡箍式鴨嘴閥廠家
    山東卡箍式橡膠鴨嘴止回閥...
    安徽單向橡膠鴨嘴閥工作原...
    湖南單向橡膠鴨嘴閥工作原...
    沈陽法蘭式鴨嘴閥生產廠家...
    【91香蕉在线免费观看接頭係列】
    雙法蘭限位91香蕉在线免费观看接頭
    VSSJA-1型單法蘭限位91香蕉在线免费观看接...
    B2F型雙法蘭鬆套限位91香蕉在线免费观看接...
    BF型單法蘭鬆套限位91香蕉在线免费观看接...
    AY型壓蓋式鬆套91香蕉在线免费观看接頭
    SSJB-3(BY)壓蓋式鬆套限位...
    SSJB-2(BY)壓蓋式鬆套限位...
    焊接式91香蕉在线免费观看接頭
    SSJB(AY)型壓蓋式鬆套91香蕉在线免费观看...
    GFJH型雙法蘭鋼複接頭
    傳力接頭係列

    CF型單法蘭鬆套傳力接頭

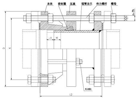
    CF型單法蘭鬆套傳力接頭適用於一這與法蘭連接,一這與管道焊接。安裝時調節產品兩端與管道或法蘭的安裝長度,安裝和焊接完畢後,對角依次均勻擰緊壓蓋螺栓,使其成為一個整體,並有一定的位移量,方便安裝維修時,根據現場尺寸進生調整。在工作時可以把軸向推力傳遞至整個管道。

    全國24小時銷售熱線:0371-64031268

    CF型單法蘭鬆套傳力接頭性能特點:
    鬆套傳力接頭是在法蘭鬆套補償接頭的基礎上增設法蘭短管及傳力螺杆而成,次類型的補償接頭與鬆套補償接頭和鬆套限位補償接頭不同的是它的補償量是指在安裝及拆卸過程中的調節量,一旦將所有的螺母擰緊,它是剛性連接的,可以傳遞軸心力,從而保護閥門、泵等設備。
    傳力接頭是泵、閥門等設備與管道連接的新產品,通過全螺栓把
    它們連接起來,使其成為一個整體,並有一定的位移量,這樣就可以在安裝維修時,根據現場安裝尺寸進行調整,在工作時,可以把軸向推力傳還至整個管道。這樣不僅提高工作效率,而切對泵、閥們等設備起到一定保護作用。
    CF型單法蘭鬆套傳力接頭是有鬆套91香蕉在线免费观看接頭和短管法蘭、傳力螺杆等構件組成,它能傳遞被連接件的壓力推力(盲板力)和補償管路誤差,不能吸收軸向位移。重要用於泵、閥門、管路等附件的鬆套連接。

    CF型單法蘭鬆套傳力接頭優點:
      1.安裝簡單方便、方便閥門安裝、可承受管線的軸向拉力。
      2.該產品采用金屬鑄造或焊接組成,鬆套部位選用梯形橡膠密封圈,在壓蓋和螺栓的作用下。
      3.利用橡膠壓縮彈性變形原理。迫使密封圈變形於接頭本體91香蕉在线免费观看管外壁之間進行靜密封。
      4.金屬和密封圈嚴格按使用性能及用戶要求選用。材質外部塗裝高強度防腐漆料,各部連接螺栓為高強度碳鋼或不鏽鋼製作。因為本體與91香蕉在线免费观看管之間有一定間隙,使它具有一定的軸向和徑向位移。
      5.在管道中能有效的補償和緩解管道和盲板推力,又能便於水泵,閥門的安裝維修更換,實為管道安裝運行業中最為理想的配套產品。   
    CF型單法蘭鬆套傳力接頭使用範圍:
      1.因為該係列產品屬金屬製造品,其有較高的抗拉和抗壓強度,軟密封性能優越,裝卸方便等功能,常被應用於電力,冶金。
      2.給排水和汙水處理等行業,主要作用於水泵與閥門和管道之間的連接。
      3.它在管道運行中有一定的多向位移作用,可以緩解管道運行中的盲板推力,對管道起到一定保護作用,特別是對管道的安裝和維修提供了極大的便利,但是在水泵出口處和管道轉角處應采用傳力接頭,因為傳力接頭通過傳力螺栓(即全絲螺栓)能把啟泵時的盲板推力傳導到泵和管道各部位,避免推力集中於管道或泵的近端發生衝擊力損傷設備。

    CF型單法蘭鬆套傳力接頭安裝簡要說明:
    CF型單法蘭鬆套傳力接頭適用於一這與法蘭連接,一這與管道焊接。安裝時調節產品兩端與管道或法蘭的安裝長度,安裝和焊接完畢後,對角依次均勻擰緊壓蓋螺栓,使其成為一個整體,並有一定的位移量,方便安裝維修時,根據現場尺寸進生調整。在工作時可以把軸向推力傳遞至整個管道。

    技術參數:

    公稱通經:DN50-DN3200
    工作壓力:0.6-1.6MPA
    使用介質:水、汙水
    密封材料:NBR
    製造標準:GB12465-2007

    序號
    名稱
    數量
    材料
    1
    本體
    1
    QT400-15、Q235A、ZG230-450、20
    2
    密封圈
    1
    NBR
    3
    壓蓋
    1
    QT400-15、Q235A、ZG230-450、20
    4
    短管法蘭
    1
    Q235A、20、16Mn
    5
    螺柱
    n
    Q235A、35、1Cr18Ni9Ti
    6
    螺母
    5n
    Q235A、20、1Cr18Ni9Ti

    公稱通徑DN

    管子外徑

    外形尺寸

    法 蘭 連 接 尺 寸

    L

    △L

    0.6MPa

    1.0MPa

    Dw

    D

    D1

    n-Th

    b

    D

    D1

    n-Th

    b

    65

    76

    76

    400

    40

    160
    130
    4-M12
    16

    185

    145

    4-M16
    20
    80
    89
    89
    190
    150
    4-M16
    18

    200

    160

    8-M16
    22
    100
    114
    114
    210
    170

    220

    180

    24
    125
    140
    140
    240
    200
    8-M16
    20

    250

    210

    26
    150
    168
    168
    265
    225

    285

    240

    8-M20
    200
    219
    219
    320
    280
    22

    340

    295

    28
    250
    273
    273
    375
    335
    12-M16
    24

    395

    350

    12-M20
    300
    325
    325

    420

    50

    440
    395
    12-M20
    24

    445

    400

    12-M20
    28
    350
    377
    377
    490
    445
    26

    505

    460

    16-M20
    30
    400
    426
    426
    540
    495
    16-M20
    28

    565

    515

    16-M24
    32
    450
    480
    480
    595
    550

    615

    565

    20-M24
    32
    500
    530
    530
    645
    600
    20-M20
    30

    670

    620

    34
    600
    630
    630

    440

    755
    705
    20-M24

    780

    725

    20-M27
    36
    700
    720
    720
    860
    810
    24-M24
    32

    895

    840

    24-M27
    40
    800
    820
    826

    600

    60

    975
    920
    24-M27
    34

    1015

    950

    24-M30
    44
    900
    920
    926
    1075
    1020
    24-M27
    36

    1115

    1050

    28-M30
    46
    1000
    1020
    1026
    1175
    1120
    28-M27

    1230

    1160

    28-M33
    50
    1200
    1220
    1226

    620

    1405
    1340
    32-M30
    40

    1455

    1380

    32-M36
    56
    1400
    1420
    1428
    1630
    1560
    36-M33
    44

    1675

    1590

    36-M39
    62
    1600
    1620
    1628

    630

    1830
    1760
    40-M33
    48

    1915

    1820

    40-M4
    68
    1800
    1820
    1828
    2045
    1970
    44-M36
    50

    2115

    2020

    44-M45
    70
    2000
    2020
    2030

    650

    2265
    2180
    48-M39
    54

    2325

    2230

    48-M45
    74
    2200
    2220
    2230
    2475
    2390
    52-M39
    60

    2550

    2440

    52-M52
    80
    2400
    2420
    2430
    2685
    2600
    56-M39
    62

    2760

    2650

    56-M52
    82
    2600
    2620
    2630

    750

    80

    2905
    2810
    60-M45
    64

    2960

    2850

    60-M52
    88
    2800
    2820
    2830
    3115
    3020
    64-M45
    68

    3480

    3070

    64-M52
    94
    3000
    3020
    3030
    3315
    3220
    68-M45
    70

    3405

    3290

    68-M56

    企業名稱:鞏義市91香蕉视频在线看管道廠 地 址:河南省鞏義市西村工業區 聯係人:龐經理 電話:0371-64031268
    手機:15617617287 / 15038001853 傳真:0371-64031728 E_mail:gyltgd@126.com 豫ICP備12019710號-5
    專業91香蕉在线免费观看節,91香蕉在线免费观看器,91香蕉在线免费观看接頭,管道91香蕉在线免费观看器,限位91香蕉在线免费观看器生產廠家 版權所有 :鞏義市91香蕉视频在线看管道廠
    網站地圖